Корзина

Проектирование водоснабжения

Сегодня только около 5% жителей загородных домов имеют возможность использовать централизованную систему водоснабжения и водоотведения. Остальные же владельцы дачных домов приходят к тому, чтобы самостоятельно сделать проект водоснабжения загородного дома.

Мы советуем обращаться за этим к профессионалам, ведь проектирование водоснабжения и канализации – самый важный этап. Все мельчайшие подробности нужно учитывать именно в начале, ещё на этапе проекта, дабы в будущем вас не ожидали неприятные сюрпризы. Компания ООО «ИНЖЕНЕРНЫЕ СИСТЕМ.РФ» выполняет комплекс работ по проектированию систем водоснабжения и канализации частных домов под ключ в Великом Новгороде и области.

Проект системы Холодного и Горячего водоснабжения

Водоснабжение первого этажа жилого дома
  1. Если скважины изначально нет на участке – это вам в плюс, так как можно заранее определиться с нужной глубиной и не подстраиваться под уже имеющиеся параметры.
    Итак, если дом планируется посещать только летом в качестве дачи и воды будет требоваться не столь много – вам будет достаточно песчаного источника, глубиной не более 50 м.
    Если же это полноценный дом с несколькими комнатами для круглогодичного проживания и ежедневного потребления воды всей семьёй – необходимо пробить артезианский источник, глубиной около 100м.
  2. Далее нужно обеспечить скважину насосом.
    При небольшой глубине достаточно будет установить насосную станцию с гидроаккумулирующим баком. Для глубокой скважины требуется специальный насос. Лучше использовать погружной, с выходом трубы ¾ дюйма и более.
  3. Установка труб.
    Ширина труб водопровода напрямую зависит от всей его протяжённости в сумме:
    При длине 0 - 10 м – диаметр труб 16-20 мм;
    10 - 30 м - 25 мм;
    более 30 м –32 мм.

Проектирование водоснабжения – сложный процесс. Ещё один важный фактор, который нужно учесть – количество кранов в доме. Один кран будет пропускать до 5л воды за одну минуту.

Для горячего водоснабжения необходим котёл с бойлером косвенного нагрева или водонагреватель. Система водоснабжения частного дома может включать:

  • Одноконтурный котёл и бойлер косвенного нагрева (нагревание воды происходит в бойлере за счёт змеевика подключенного к котлу);
  • Двухконтурный (каждый контур выполняет свою роль: первый – нагревает воду, второй – для отопления в доме);
  • Проточный (работает от газа или электричества, мощности хватает для обслуживания двух- и трёхэтажного дома);
  • Водонагреватель накопительный (электрический накопитель), объёмом от 5 до 1000 л и более.

Проект системы водоотведения

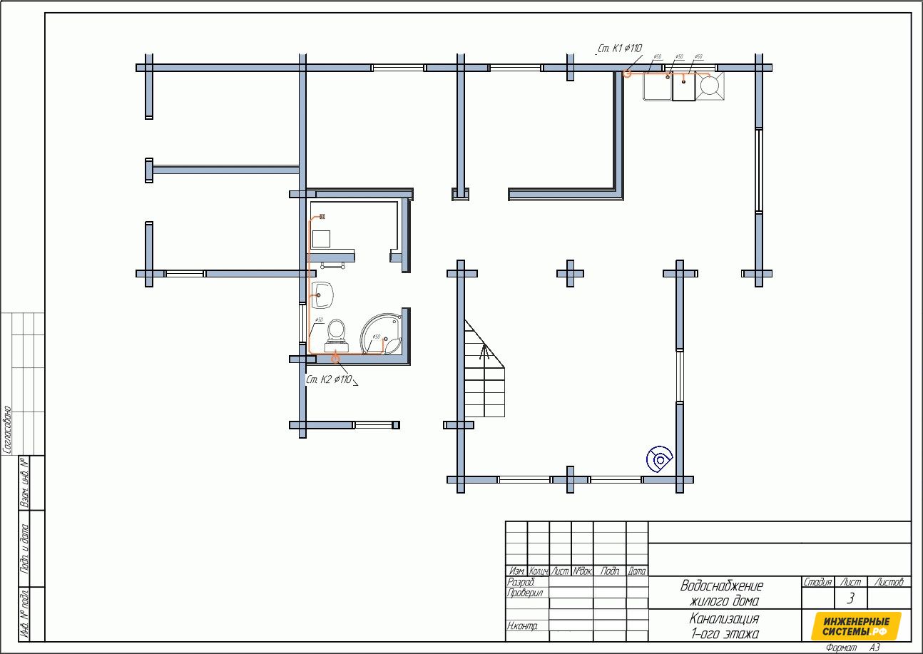
Канализация первого этажа

При составлении проекта водоотведения есть несколько правил, которым нужно следовать:

  • При проектировании схемы трубопровода все углы уклона труб и все углы поворотов должны быть более 90 градусов, но не сильно пологими, иначе образуются засоры;
  • Все трубы - диаметром 50 мм;
  • Труба между унитазом и стояком - 110 мм в диаметре;
  • Канализация нуждается в вентиляции, лучше всего для этого стояк выводить через крышу;
  • Собирать наружный канализационный трубопровод начинайте с нижней точки;
  • При установке внутренних систем водоотведения важно фиксировать все трубы, например, хомутами, к стенам. Это поможет избежать провисания труб.

На участке должен быть один из типов очистных сооружений:

  1. Септик (недорого стоит, но требует строительства полей фильтрации, а также есть требования к грунту);
  2. Станция глубокой биочистки (стоит дороже, имеет самые высокие показатели по очистке воды, бесшумна, подходит для любого грунта, имеет компактные размеры, но нуждается в стабильном электропитании).

Расчёт водомерного узла, подбор насосного оборудования, система фильтрации



Ввод ХВС

Любой проект водоснабжения включает в себя водомерный узел. Установка водомерного узла необходима для измерения расходов воды на потребительские нужды. Помещение, в котором будет установлен измерительный прибор, должно быть тёплым и сухим (лучше, если это будет какой-либо тепловой пункт дома). Основные типы водомерных узлов:

  • ВМУ без обводной линии;
  • ВМУ с обводной линией;

При выборе труб важно учесть, что внутренние системы водоснабжения подвергаются гораздо меньшим нагрузкам, чем трубы, которые проложены на улице.

Для внешних инженерных систем водоснабжения мы рекомендуем использовать трубы, предназначенные для улицы (обычно в магазинах они оранжевого цвета).

Система водоснабжения частного дома обязательно должна включать в себя фильтры. В колодце и скважине может находиться множество примесей, опасных для здоровья. Чаще всего, владельцы загородных домов сталкиваются с такими проблемами, как: высокая жёсткость воды, высокое содержание железа, содержание ила и песка (грязная вода), загрязнение бактериями и т.д.

Поэтому система фильтрации должна решать как минимум несколько задач сразу и содержать сразу несколько фильтров:

  • для смягчения воды;
  • для очистки воды от механической грязи;
  • для обеззараживания воды;
  • для тонкой очистки воды от нитратов, тяжёлых металлов и нефтепродуктов.

Общая смета по материалам

Спецификация оборудования

Приблизительная стоимость на стандартный проект водоснабжения в частном доме:

  • До 100 м2 – 10 000 руб
  • До 150 м2 – 15 000 руб
  • До 200 м2 – 20 000 руб
  • До 250 м2 – 25 000 руб

Вы всегда можете заказать свой индивидуальный проект в ООО «Инженерные системы». Стоимость проекта всегда будет рассчитываться индивидуально, ведь у каждого владельца загородного дома свои потребности. Если вы хотите узнать более конкретную цену именно для вашего проекта, позвоните нам по телефону 8 (8162) 90-09-44 или оставьте заявку на сайте. Наши менеджеры свяжутся с вами для уточнения деталей.