Корзина

Проектирование систем отопления (Частного дома)

Индивидуальное проектирование отопления в любом помещении, будь то загородный дом или небольшая квартира, - сложный процесс, содержащий много тонкостей. Именно поэтому заниматься его составлением обязательно должны профессионалы. Как показывает практика, самостоятельно далеко не всегда получается учесть все нюансы. А мелкие погрешности в будущем могут превратиться в большие проблемы. Компания ООО «ИНЖЕНЕРНЫЕ СИСТЕМЫ.РФ» выполнит любой комплекс работ по проектированию отопления под ключ в вашем доме. Мы работаем в Великом Новгороде и области и берёмся за разработку проекта любой сложности.

Одним из способов отопления частного дома может быть тёплый водяной пол.

Подбор тёплого водяного пола

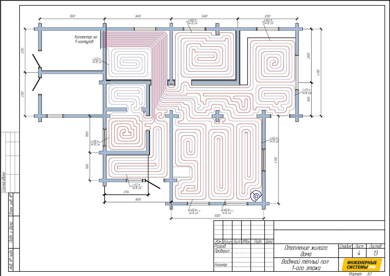
Тёплый пол может быть как единственным источником отопления загородного дома, так и использоваться в комплексе с радиаторами. Сообразно его использование на площадях более 20м2 (в меньших помещениях лучше использовать электрическое отопление).

Для того, чтобы сделать расчёт тёплого пола, нужно, в первую очередь учесть все будущие слои. Подробнее об этом вы можете прочитать в разделе «Тёплые полы» (ссылка).

Количество контуров всегда рассчитывается с тем условием, чтобы плотность укладки была не более 30см и не менее 10 см. В ином случае вы получите либо участки холодного пола, либо напрасный перерасход энергии. Проект отопления тёплого пола также должен учитывать места с наибольшей теплопотерей.

Рекомендуемая протяжённость каждого контура – от 60 до 70 м. Такая длина является самой экономичной в соотношении теплоотдачи, диаметра трубопровода и расхода воды. По возможности, старайтесь использовать все контуры одной длины.

Существует две схемы укладки тёплого пола:

  • «Улитка»

    Отличный вариант для больших площадей или помещений с большой теплопотерей. Идёт спиралью к центру комнаты, позволяет сделать шаг менее 20 см. Трубы изогнуты только на 90 градусов, что упрощает укладку и уменьшает нагрузку на трубы. Как следствие – бОльшая теплоотдача.

  • «Змейка»

    Подойдёт для небольших и средних площадей (до 25м2). Укладка начинается со стороны стены с самой большой теплопотерей. Подходит для пола «с уклоном». Рекомендуемый шаг – 30 см.

Как мы уже говорили выше, тёплый пол может быть установлен в сочетании с радиаторным отоплением. Также радиаторы могут быть автономной системой отопления коттеджа.

Проект радиаторного отопления

В отличие от других способов отопления, радиаторное загородное отопление помогает значительно сэкономить энергию. Это делает данную систему более выгодной. Вы всегда можете выбрать котёл на более доступном для вас топливе (торф, газ или уголь). Такой проект отопления подойдёт как для одноэтажного, так и двух- и трёхэтажного дома. Основные составляющие данной системы обогрева дома это: нагревательный котёл+трубопроводы+радиаторы. Дополнительно могут быть установлены циркулярные насосы, коллектор, байпасы, и т.д.

Есть две основные схемы для перемещения воды по трубам:

  • естественная циркуляция (горячая вода сама вытесняет остывшую);
  • искусственная циркуляция (с помощью насоса увеличивается давление в трубах).

В зависимости от вида подводки труб есть несколько способов установки отопления:

  1. Однотрубная установка (последовательное соединение);
  2. Двухтрубная (параллельно и одновременно подводится горячая вода по первой трубе и остывшая вода выводится по второй);
  3. Коллекторная (улучшает способы регулировки распределения тепла).

Материал, из которого будет сделан трубопровод – важная часть установки систем отопления. Подверженные коррозии стальные трубы сейчас активно вытесняют практичные металлопластиковые или пропиленовые. Для их монтажа используются обжимные фитинги или пресс-фитинги, в отличие от стальных, для которых нужен специальный сварочный аппарат. При правильной эксплуатации, металлопластик и полипропилен прослужат вам долгие годы.

Проектирование отопления учитывает материалы, из которых сделаны радиаторы. Современные радиаторы могут быть сделаны из самых разных материалов. У всех из них есть свои плюсы и минусы:

  • Алюминий (лёгкие, компактные радиаторы, с высокой теплоотдачей, не стойкие к химическим воздействиям) нельзя устанавливать при наличии медных элементов в системе;
  • Биометалл (надёжные, стойкие к химическим веществам, выдерживают скачки давления);
  • Сталь (имеют высокие показатели теплоотдачи, возможность выбора габаритов и доступную цену);
  • Чугун (современные варианты чугунных радиаторов вполне привлекательны по дизайну, обладают большой теплоотдачей и выгодным потреблением энергии).

Расчёт и подбор оборудования для котельной

Для того, чтобы циркулирующая по трубам вода могла качественно отапливать помещения, её температура должна быть всегда 35-50 градусов (для тёплых полов) и 70-80 градусов (для радиаторов). Обычно котёл просто настраивают на нужную температуру. Всё это заранее вписывается в проект отопления. В больших домах, чаще всего, имеет смысл установка двух котлов, настроенных на разные температуры. Каждый из них будет настроен на определённую температуру, необходимую для радиаторов или тёплого пола. Для небольших помещений нет необходимости устанавливать два котла. Выгоднее использовать смесительный узел.

Коллекторный шкаф – место, в котором спрятаны все точки, соединяющие трубы с подачей горячей воды от котла. Вы можете купить как напольный, так и настенный коллекторный шкаф – функционал его от этого не изменится. Главное учесть это заранее и включить в проектирование отопления.

При использовании котлов происходит сжигание воздуха, а значит, необходимо продумать систему дымоудаления. Для этого подойдёт один из способов вентиляции помещения, в зависимости от того, какой котёл вы используете ( например, электрический и газовый котёл будут сильно отличаться). Расчёты вентиляции лучше всего доверить профессионалам, так как от этого зависит жизнь и здоровье всех жильцов дома.

Расчёт теплопотерь

Проектирование отопления всегда подразумевает расчёт теплопотерь. Теплопотери измеряются в ВТ на 1м2 в час. Эта цифра может колебаться от 40 до 300 Вт/м2, в зависимости от толщины стен, количества окон в помещении, расстояния от пола до потолка и т.д. Точнее рассчитать теплопотери вы можете с помощью специальных программ, которые можно найти в сети Интернет.

Общая спецификация

Общая стоимость проекта зависит от площади, для которой необходимо выполнить проект отопления:

Площадь Стоимость, руб.
до 100 м2
10 000
до 150 м2
15 000
до 200 м2
20 000
до 250 м2
25 000

Это всё приблизительные расчёты. Заказать точный расчёт вашего проекта вы можете, позвонив нам по телефону 8 (8162) 90-09-44 или оставив заявку на сайте.